Mühlenflößstr. 34b, 33175 Bad Lippspringe
Ausstattung:
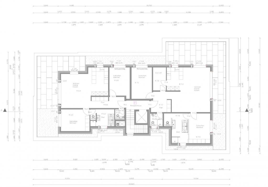
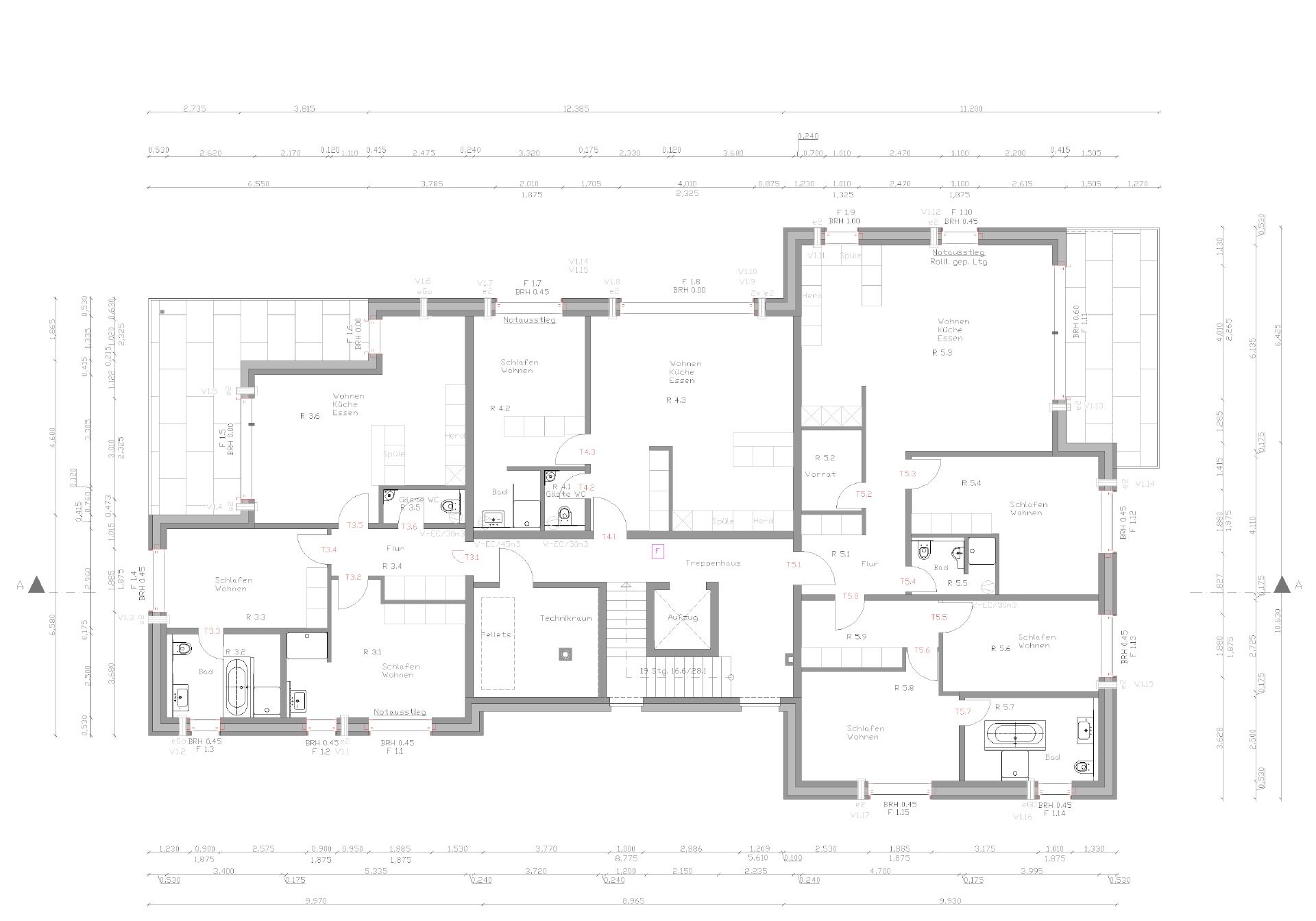
Isolierung/Wärmestandard gemäß KfW40 Plus
Technik gemäß KfW40 Plus
Photovoltaik mit Stromspeicher
Wärmeschutzfenster mit Uf<=0.8W/m²*K
Einbruchhemmung RC1 im EG und OG bei zugänglichen Elementen
Einbruchhemmung bei den WAT ET1
Außenwände mit 175mm PP und 240mm Isolierung (ggf. zzgl. Verblender) bis zu Gesamttiefe bis zu 530mm
Fußbodenheizung mit Raumsteuerung und zentraler Vorlauftemperaturregelung
Rollladenbeschattung (elektrisch)
Aufzug hydraulisch
dezentral gesteuerte Zwangsbelüftung mit Energierückgewinnung, Effizienz > 82%,
für Luftaustausch und Feuchtigkeitsausgleich
Gebäudeautomation mit klassischer Bedienung und auch via
LocalNet, Internet, Tab , Handy oder Rechner
schnelles Internet (500MBit/sec Zentrale) via WLan und Lan optional
Satelliten TV digital
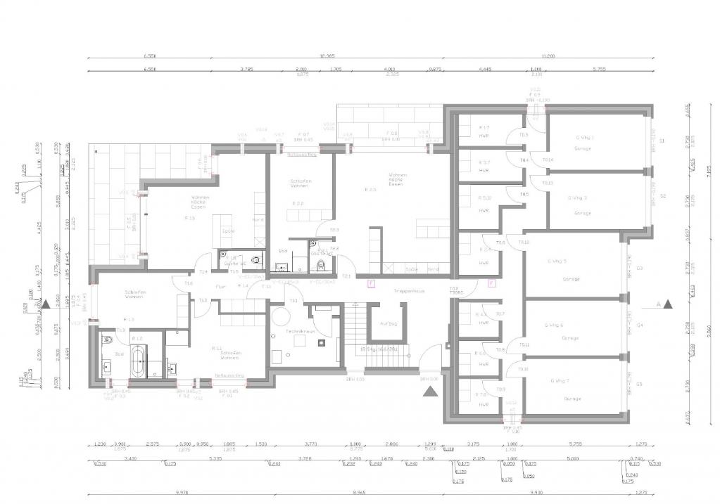
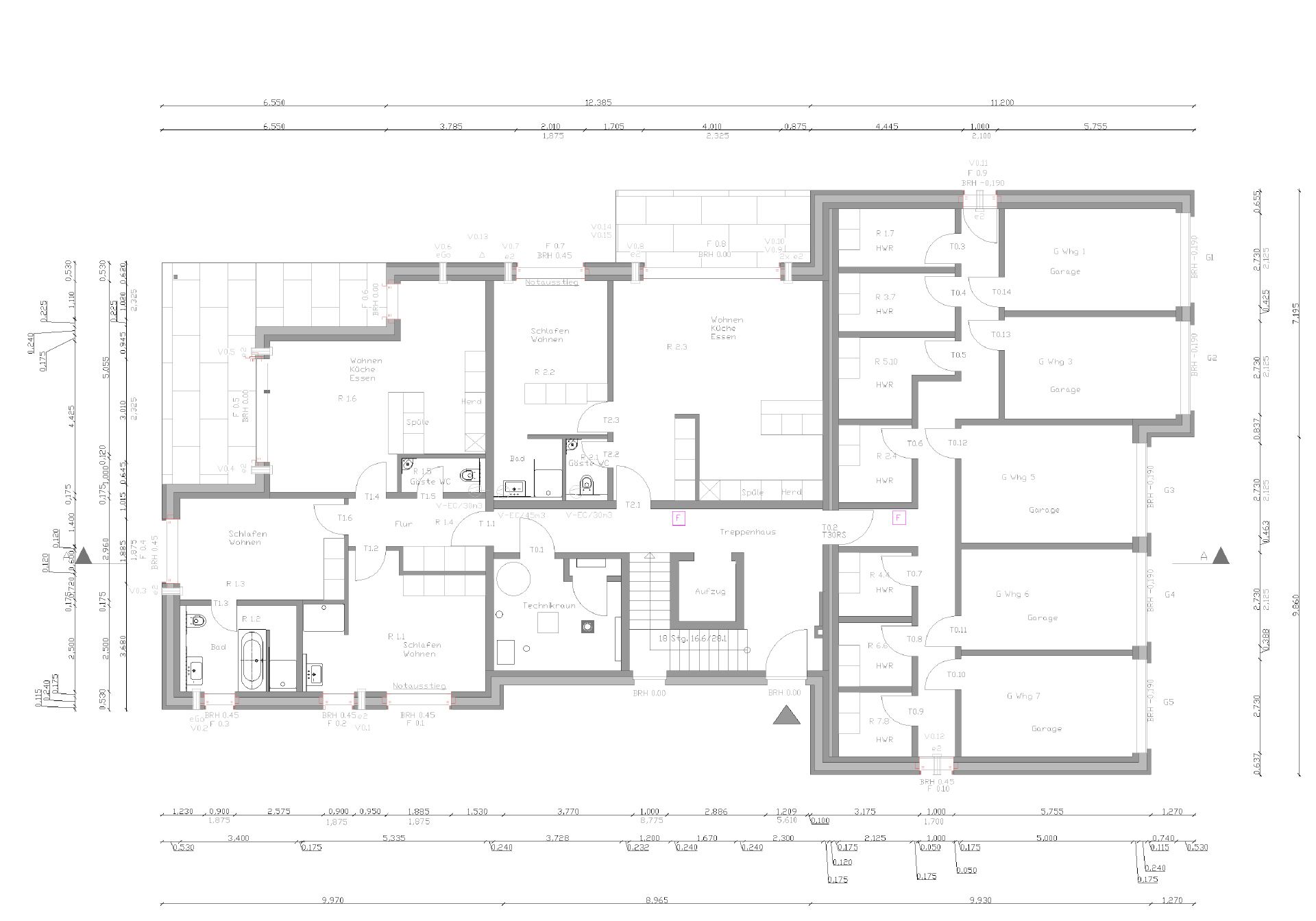
PKW-Einstellplätze möglich
PKW-Garagen mit elektr. Sektionaltoren und Fernbedienung
Hauswirtschaftsräume mit Anschluss für Waschmaschine und Trockner
(in den Wohnungen dürfen keine Waschmaschinen aufgestellt werden)
Spielfläche für Kinder in nur 200m Entfernung
EG mit Terrassen und Grünflächen
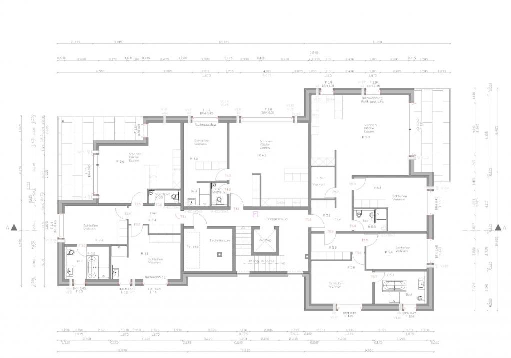
OG mit Balkonen, außer einer Wohnung
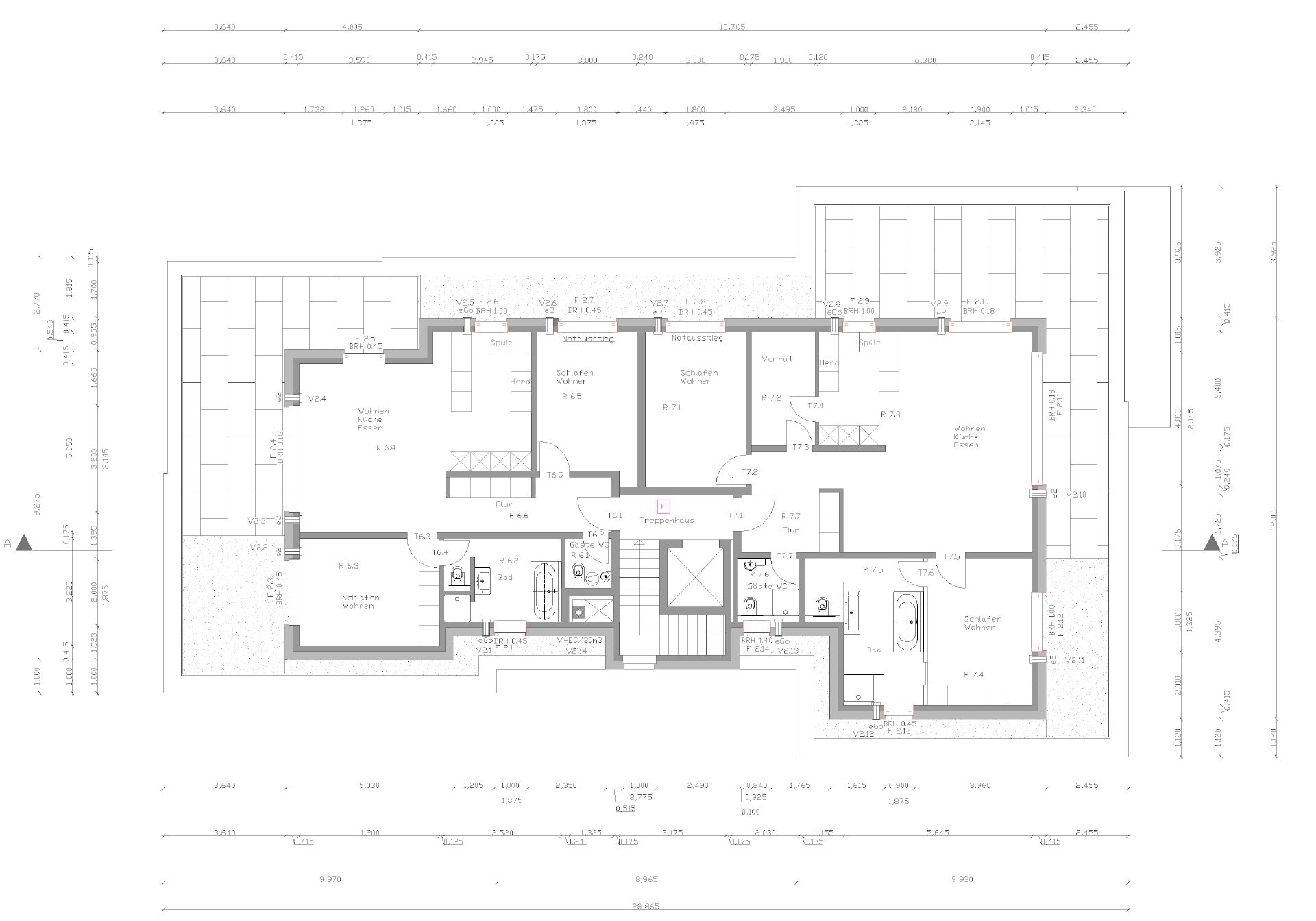
DG als Staffelgeschoss
Ernergieversorgung:
55kW Mixstrom gemäß Westfalen Weser Netz AG
Wärme für Heizung und Warmwasser durch nachhaltige Pelletheizung 25kW max.
oder überschüssigen Solarstrom
15kWp Photovoltaik, Ost-West-Ausrichtung
16.5kWh Stromspeicher Li-Ionen
1500ltr. Wasser-Wärmespeicher
Örtlichkeiten/Infrastruktur:
ab Marienloh: zufriedenstellend bis gut
in Bad Lipp: unzureichend
sehr nah an Paderborn, keine Lippspringer Ortsdurchfahrt notwendig
öffentliche Bushaltestellen zu Fuß schnell erreichbar
das NPH Netz mit dem Rad in Marienloh erreichbar: von dort
aus sind PB-City, Uni, Ahorn, Maspernhalle, Maspernoper, Benteler-Arena, ...
angebunden
10min zu Fuß in den Wald - schöne Lauf- und Radstrecken
10min mit dem Auto in den Hochwald
15min zu Fuß ins Lippspringer Ortzentrum
Supermarkt, Getränkemarkt, 'Bäcker' zu Fuß erreichbar in max. 10min
Techn. Infrastruktur:
mobil: LTE/5G abgedeckt

